20.75M
Категория: СтроительствоСтроительство

Конструктивные системы и схемы зданий

1.

Конструктивные системы и схемы зданий
Совокупность горизонтальных и вертикальных несущих конструкций,
обеспечивающих пространственную жесткость и устойчивость здания.
В зависимости от характера и способа распределения несущих и
ограждающих функций между элементами, конструктивная система здания
бывает бескаркасная, каркасная и смешанная.
В зданиях бескаркасной системы опорой для
перекрытий и крыши служат наружные и внутренние
стены. Они передают воспринимаемую нагрузку на
фундамент.
При этом внутренние несущие стены могут иметь
продольное или поперечное направление, в
зависимости от чего выбирается направление
укладываемых по стенам плит или балок перекрытий.
В зданиях каркасной системы несущим остовом
служит система из опирающихся на фундаменты стоек
(колонн) и горизонтальных связей (ригелей),
образующих каркас здания.
Колонны каркаса размещены как по периметру, так
и внутри здания. Такие конструктивные схемы широко
используются в промышленном строительстве, а также
при сооружении общественных зданий.
При смешанной конструктивной системе
нагрузки воспринимаются несущими наружными
стенами и внутренним каркасом.
1

2.

Конструктивные системы зданий
Конструктивная система представляет собой взаимосвязанную
совокупность вертикальных и горизонтальных несущих конструкций здания,
которые совместно обеспечивают его прочность, жесткость и устойчивость.
По виду вертикальной несущей конструкции различают пять (5) основных и
семь (7) комбинированных конструктивных систем, которые можно
представить так:
Бескаркасная система
(стеновая) самая распространённая в
КОНСТРУКТИВНЫЕ СИСТЕМЫ
СТЕНОВАЯ
ОСНОВНЫЕ
КАРКАСНАЯ
ОБЪЕМНО-БЛОЧНАЯ
СТВОЛЬНАЯ
ОБОЛОЧКОВАЯ
КАРКАСНО-СТЕНОВАЯ
КАРКАСНЫЕ
КОМБИНИРО
ВАННЫЕ
КАРКАСНО-БЛОЧНАЯ
КАРКАСНО-СТВОЛЬНАЯ
КАРКАСНО-ОБОЛОЧКОВАЯ
жилищном строительстве, ее
используют в зданиях различных
планировочных типов высотой от
одного до 16 этажей и более.
Каркасная система с
пространственным рамным каркасом
применяется преимущественно в
строительстве многоэтажных
общественных зданий в 9 и более
этажей.
Объемно-блочная система
зданий в виде установленных друг на
друга объемных блоков применяется
БЛОЧНО-СТЕНОВАЯ
БЕСКАРКАС
для жилых домов высотой до 12
СТВОЛЬНО-СТЕНОВАЯ
НЫЕ
этажей в обычных и сложных
СТВОЛЬНО-ОБОЛОЧКОВАЯ
грунтовых условиях.
Ствольную систему применяют в зданиях высотой более 16 этажей. Наиболее
целесообразно применение ствольной системы для компактных в плане многоэтажных
зданий, особенно в сейсмостойком строительстве, а также в условиях неравномерных
деформаций основания (на просадочных грунтах, над горными выработками и т.п.).
Оболочковая система присуща уникальным высотным зданиям жилого
административного или многофункционального назначения.
2

3.

3

4.

Конструктивные схемы зданий
Конструктивная схема представляет собой вариант конструктивной системы по
признакам состава и размещения в пространстве основных несущих конструкций
(продольному, поперечному, смешанному, каркасному).
Для бескаркасных типов зданий
характерны следующие схемы:
с продольным расположением несущих стен
(на них опираются междуэтажные перекрытия);
с поперечным расположением несущих стен
(наружные стены, за исключением торцовых –
самонесущие, на них не передаются нагрузки от
перекрытий);
перекрёстная – с опиранием плит перекрытия
(по контуру, т.е. опирание на четыре стороны) на
продольные и поперечные стены.
Для каркасного типа зданий используются
следующие схемы:
Конструктивная схема каркасного здания:
1 — колонны, 2 — ригели, 3 — рядовые плиты
перекрытий, 4 — связевая плита перекрытий,
5 — навесные стеновые панели
- с продольным расположением ригелей;
- с поперечным расположением ригелей;
- с перекрёстным расположением ригелей;
- безригельные.
4

5.


Перекрытие- горизонтальные конструктивные элементы здания, разделяющее
его по высоте на этажи.
Выполняют несущую и ограждающую функцию (несущая часть воспринимает
нагрузку и передает ее на вертикальные несущие элементы, ограждающую
часть перекрытия выполняет пол)
По местоположению в зданиях перекрытия делятся на
1.
Чердачные
2.
Междуэтажные
3.
Цокольные (надподвальные)

6.

Конструкции перекрытий в крупнопанельных зданиях- балочные
Их устраивают из плит настила
Виды:
Сплошные ж/б плиты (однослойные из тяжелого бетона, из легкого бетона)
Многослойные
Многопустотные
Ребристые с ребрами вверх
Двойными часторебристыми из тонких плит скорлуп
Шатровыми с ребрами по контуру
Настил 2Т (покрытие)

7.

Обычно используются панели перекрытий
сплошного сечения и многопустотные плиты
Схемы опирания плит зависит от
конструктивной системы и конструктивной
схемы здания
Конструктивная система-бескаркасная
Схема- с продольными несущими стенами, на
которые опираются перекрытия (многопустотные
плиты);
с поперечными несущими стенами, когда
наружные продольные стены, освобожденные от
нагрузки перекрытий, являются самонесущими, а
внутренних продольных нет, не считая диафрагм
жесткости (сплошные плиты на комнату или
многопуст. плиты);
перекрестная - с опиранием перекрытий на
продольные и поперечные стены (сплошные
плиты на комнату).

8.

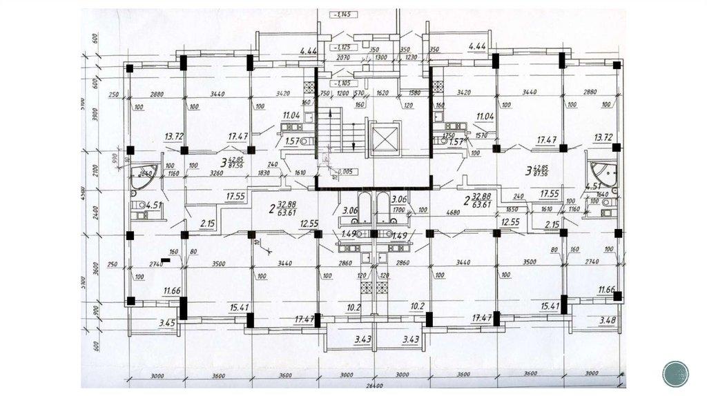
Железобетонные сплошные плиты
перекрытий
Привязка координационных осей наружных
стен 100 мм, для торцовых стен 50 или 70 мм,
единая величина заводки панелей внутрь
стен в стык наружных 30 мм
Конструктивная система с «малым» шагом
поперечных стен
Расстояние между поперечными стенами от 2,7
до 3,6 м
Конструктивная система с «большим» шагом
поперечных стен
Расстояние между поперечными стенами до 6,3
м
Плиты, примыкающие к лестничным клеткам,
увеличиваются со стороны опорной грани на 70
мм для заполнения платформенного стыка

9.

2 Подрезки с закладными деталями

10.

11.

В- узел сопряжения плит
перекрытий при высоте в 120 мм
Г- узел сопряжения на пересечении
4-ех плит
Д - узел крепления 2-ух плит у
наружных панелей при высоте
плиты 120 мм
Е-узел крепления 2-ух плит к
наружным панелям при высоте
плиты 160 мм

12.

Таблица 1
Толщина плиты,
мм
Тип плиты при их опирании на несущие конструкции
по четырем
сторонам
по трем сторонам по двум сторонам
100

-
-
120

-
2ПД
140

3ПТ
3ПД
160

4ПТ
4ПД
180

5ПТ
5ПД
200

6ПТ
6ПД
Пример условного обозначения плиты типа 2П(120 мм),
длиной 3580 мм, шириной 5980 мм под расчетную нагрузку
3,0 кПа, с напрягаемой арматурой, из легкого бетона:
2 П 36.60-3л
То же, плиты 4ПД длиной 5980 мм, шириной 2380 мм под
расчетную нагрузку 6,0 кПа, с напрягаемой арматурой
класса Ат-V, изготовляемой из тяжелого бетона:
4 ПД 60.24-6АmV

13.

Пример 1
Используется сплошная ж/б
плита h-120 мм
2 связи по короткой стороне,
3 по длинной( монтажные петли
соседних плит соединяются
анкером

14.

Пример 2
Используется сплошная ж/б
плита h-160 мм

15.

При высоте перекрытия 160 мм

16.

Многопустотные плиты
ПК — плита канальная (круглопустотные бетонные перекрытия
опалубочного формования). Плиты ПК изготавливаются путем заливки
бетонной смеси в металлическую форму (опалубку) с уложенными в нее
сетками и стержнями арматуры, с последующей вибрацией и тепловой
обработкой. Длина max-12000 мм
ПБ — плита безопалубочная (пустотелые жб плиты перекрытия
безопалубочного формования) Плиты ПБ изготавливают путем загрузки
бетонной смеси на непрерывно движущиеся вибрационные конвейерные
линии (стенды), плита-полуфабрикат получается большой длины, которую
после становления бетона разрезают на готовые жб изделия.

17.

анкеровка перекрытий жб осуществляется каждые 3 м
у наружной стены и лестницы и монолитного участка плиты не анкеруются
Ширина плит 1200,1500 (доборная 1000 мм)
Длина от 2400-9000 мм с сохранением высоты 220 мм
Пример условного обозначения (марки) плиты типа
1ПК (высота 220, и диаметр пустот 159) длиной 5980
мм, шириной 1490 мм, под расчетную нагрузку 4,5 кПа
)
(450 кгс/м , изготовляемой из тяжелого бетона с
напрягаемой арматурой класса А800 (Aт-V):
1ПК 60.15-4,5А800

18.

Поперечная конструктивная система с большим или
смешанным шагом
С помощью хомута, на котором держится
плита, создается отверстие для вентканала и
инженерных коммуникаций

19.

Продольная конструктивная система

20.

21.

•По своей статической схеме балконные плиты могут работать, как консольная плита, передающая
изгибающий момент и вертикальную опорную реакцию на конструкцию стены и перекрытие здания;
•Передавать все усилия на несущую наружную панель
•как балочная плита, имеющая вариантные решения опирания сторон: - на консольные балки, подвеску к
внутренним поперечным стенам здания или опирания на выносные стойки

22.

23.

24.

25.

26.

В зависимости от
пролетов, нагрузок и
архитектурных требований
применяются различные виды
монолитных конструкций
перекрытий:
безбалочное бескапительное
при пролетах до 7,2 м;
безбалочное с капителями;
при пролетах до 9 м; балочное
(ребристое)
при пролетах до 9 м;
кессонное (часторебристое)

27.

28.

29.

Максимальные расстояния между осями колонн в каждом направлении при безбалочных плитах следует принимать
не более 7,2 м. Монолитные безригельные каркасы проектируют на основе квадратной или прямоугольной сетки
колонн, при этом соотношение между большим и меньшим пролетами ограничивается как 4/3. Наиболее
рациональна квадратная сетка колонн 6x6 м.
Высота помещения принимается минимальная 2,55, но желательно заложить высоту 2,8 м.
Толщина монолитного безригельного перекрытия-160-200 мм (Толщину монолитной плиты принимают из
условия ее необходимой жесткости в пределах 1/32-1/35 от величины наибольшего пролета (max шага между
опорами)
Диафрагмы жесткости – стены, панели, соединяющие колонны, их длинна чаще всего 3 и 6 м. Толщина монолитных
стенок жесткости обычно составляет 200 - 300 мм, но в высотных зданиях она может доходить до 600 мм и более.
Обычно диафрагмы жесткости ограждают лестничную клетку или лестнично-лифтовой узел (в этом случае колоны
не ставят- ограждают ЛК или ЛЛУ монолитные стены).ДЖ, ограждающих ЛК, не достаточно.
Монолитные внутренние стены толщиной не менее 160 мм при выполнении из тяжелого бетона и не менее 180 мм —
из конструктивного легкого.
Перегородки. Междуквартирные перегородки по сравнению с междукомнатными должны обладать повышенной
звукоизоляцией. К перегородкам, ограждающим кухни и санитарные узлы, предъявляют требования повышенной
влагостойкости и гигиеничной отделки поверхностей (удобство мытья).
Перегородки могут быть панельными, железобетонными и керамзитовыми толщиной 80-100 мм в помещениях с
влажностью более 70 %, в помещениях с влажностью менее 70 % или при сложной конфигурации помещений
перегородки обычно выполняют кирпичными толщиной 65-125 мм.
На плане нужно показать колонны, диафрагмы жесткости, вентиляционные каналы, показать термовладыши,
отсекающие перекрытие и лоджии, балконы.

30.

31.

Данные элементы связывают между собой и друг с
другом колонные панели, при этом они
обеспечивают пространственную жесткость всей
постройке. Они должны находиться в зданиях во
всех направлениях таким образом, чтобы
происходило пересечение и образовывались Тобразные или Г-образные фигуры.

32.

33.

34.

35.

36.

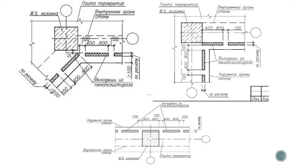
устройство термовкладышей из экструзионного пенополистирола «ПЕНОПЛЭКС» в
монолитном домостроении для обеспечения оптимальной теплотехнической
однородности конструкции и минимизации теплопотерь.

37.

38.

39.

40.

41.

42.

Подбор длины перемычки
Для расчета длины перемычки прибавьте к
ширине проема величину опорной части.
•В несущих стенах опорная часть перемычки
должна быть не менее 200 мм на каждую
сторону.
•В ненесущих стенах (перегородках) и несущих
стенах допустима опорная часть перемычек не
менее 100 мм на каждую сторону.
Подбор ширины перемычки
Ширина перемычки подбирается соответственно толщине стены. Для
проемов свыше 300 мм используются сборные перемычки. Например:
•Для проема в стене толщиной 300 мм нужна перемычка шириной 300 мм.
•Для проема в стене толщиной 400 мм – 2 перемычки 200+200 мм.
•Для проема в стене толщиной 500 мм – 2 перемычки 300+200 мм.

43.

Пример обозначения перемычки
ПБ 110.20-3,5Я
ПБ - перемычка брусковая
110 - длина перемычки в см.
20 - ширина перемычки в см.
3,5 - прочность бетона на сжатие (В-3,5)
Я - ячеистый бетон
Армированные брусковые перемычки из ячеистого бетона
плотностью D-700 прочностью B-3,5
Марка силикатных
перемычек:
1 ПБ 110.10-3,5Я
Длина
L, мм
2 ПБ 110.12,5-3,5Я
Ширина
В, мм
100
125
Высота
Н, мм
Вес
кг
27
34
1090
250
3 ПБ 110.15-3,5Я
150
40
4 ПБ 110.17,5-3,5Я
5 ПБ 110.20-18-3,5Я
6 ПБ 110.25-18-3,5Я
7 ПБ 110.30-18-3,5Я
8 ПБ 110.38-18-3,5Я
9 ПБ 110.40-18-3,5Я
175
200
250
300
375
400
47
56
69
82
101
108

44.

45.

46.

паркет
English     Русский Правила